






Project general facts
Al Zorah is designed with the resident and visitor experience in mind. Connectivity between the different residences and the main destinations and recreational activities is of prime importance and includes parks, pedestrian and cycling routes, and sidewalks that create areas of interaction and activity.
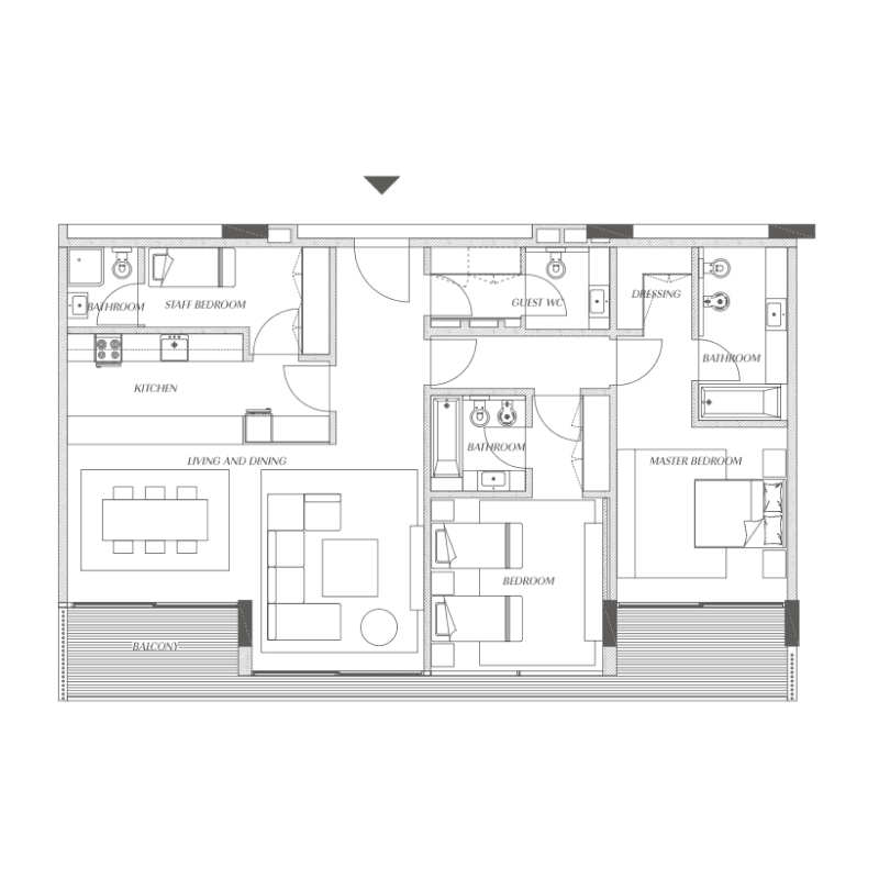
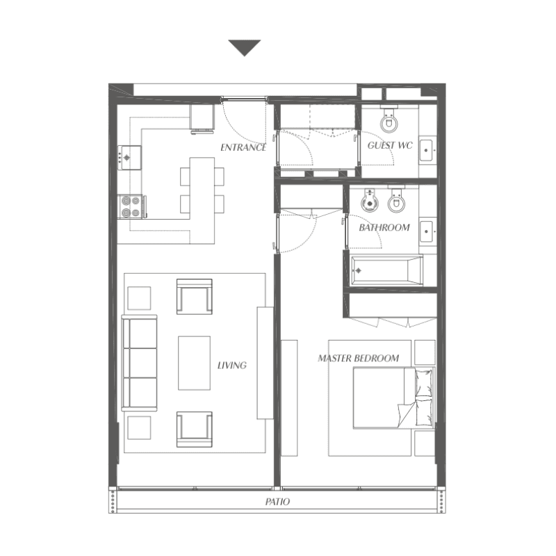
The stunning two-building residential apartment complex comprises studio to three-bedroom apartments in simplex and duplex typologies. Inspired by minimalist Mediterranean architecture with modern aesthetics, the complex design features a linear configuration and simple geometric shapes that blend seamlessly with the environment and allow the most efficient use of space. The complex includes an internal courtyard designed to provide natural light and ventilation through large skylights, presenting residents with a refreshing play or relaxation space while cultivating neighbor interaction and socialization.
Floating within the creek waters, a pool deck with lawn and play area further enhances the development’s communal living experience. A great place to unwind and enjoy the surrounding vistas. Airy interiors are designed to blur the line between indoors and out, perfectly framing an endless vista, while ensuring an intimate setting for private living.
Finishing and materials
Floors: Сeramic full body
Walls: Emulsion paint
Ceiling: Gypsum board with emulsion paint and spot lighting
Skirting: Сeramic full body
Kitchen and appliances
Cabinets: Solid frame and panel, melamine interiors and choice of veneer or approved equal
Counter tops: Granite counter tops with stainless steel sink and pull-out mixer with backsplash or approved equal
Furnishing
No
Location description and benefits
Al Zorah is a coastal masterpiece nestled along the shores of the Arabian Gulf in the United Arab Emirates. This idyllic destination seamlessly fuses nature's beauty with luxurious living, creating an unparalleled haven for residents and visitors alike. With its prime location just minutes away from Dubai and Sharjah, Al Zorah presents a harmonious blend of serenity and accessibility. Spanning over 5.4 million square meters, the development showcases a diverse landscape of pristine beaches, mangroves, lush forests, and salt flats, all teeming with rich biodiversity.
The heart of Al Zorah is its championship golf course designed by Jack Nicklaus, offering an exclusive and picturesque golfing experience. The Al Zorah Golf Club is a centerpiece of this community, surrounded by luxury residences, elegant hotels, and gourmet dining options that cater to a refined lifestyle.
Al Zorah is not just a destination; it's a lifestyle that celebrates the seamless union of nature and luxury. The expansive network of walkways, parks, and waterfront promenades encourages outdoor activities and relaxation. The Al Zorah Marina adds to the charm, offering berthing for boats and yachts, making sea exploration an integral part of life here.

63 m²
AED 896,230

78 m²
AED 1,542,598

162 m²
AED 2,105,286

282 m²
AED 4,196,499

209 m²
AED 0

248 m²
AED 5,447,724
Loading map...
We'll get back to you within 24 hours