






Project general facts
EVERGR1N House is a contemporary residential project located in Jumeirah Garden City, Dubai, designed to blend modern urban living with a strong connection to nature. The development introduces a calm and balanced lifestyle within a dynamic city setting, where clean architectural lines are complemented by natural elements. Its concept reflects a thoughtful approach to city living, offering residents a peaceful environment while remaining closely connected to Dubai’s vibrant urban core.
The project is envisioned as a green sanctuary, integrating abundant plant life throughout the building to create a living, breathable atmosphere. From welcoming lobbies to tranquil garden areas, nature is woven into the daily residential experience. Smart home technology enhances comfort and functionality, with integrated home automation systems by Legrand and smart locks by Tedee, allowing residents to enjoy a seamless and modern lifestyle. Spacious apartments with floor-to-ceiling windows invite natural light and frame views of both greenery and the surrounding cityscape, redefining contemporary urban living.
Interior finishes are modern and executed with high-quality materials, incorporating natural textures and greenery as a key design element throughout the building. Kitchens are fully equipped and designed for everyday convenience. Residences are delivered fully furnished, ensuring a move-in-ready living experience that aligns with the project’s refined and nature-inspired aesthetic.
Location description and benefits
Jumeirah Garden City is a prime area located in the heart of Dubai, known for its strategic positioning and accessibility. Situated close to Sheikh Zayed Road, one of Dubai’s main arterial roads, the area provides residents and businesses with easy access to key parts of the city, including Downtown Dubai, Dubai Marina, and the Dubai International Airport. This location makes it a highly sought-after spot for both residential and commercial developments, catering to professionals, families, and businesses looking for a central and convenient setting.
The area is designed to offer a balanced blend of urban living and natural beauty, featuring a mix of high-rise buildings, mid-rise residential complexes, and villas surrounded by lush landscaping. Jumeirah Garden City is planned to include extensive green spaces, parks, and water features, creating a serene environment amidst the urban landscape. This integration of nature within the city is intended to promote a sense of community and well-being among its residents, offering a peaceful retreat from the hustle and bustle of city life.
In addition to its residential offerings, Jumeirah Garden City host a variety of retail outlets, dining establishments, and entertainment options, making it a self-sufficient neighborhood with everything residents need within easy reach. The development aims to enhance the quality of life for its inhabitants by providing modern amenities, recreational facilities, and community spaces that encourage social interaction and a healthy lifestyle. Its commitment to combining luxury living with environmental sustainability and urban convenience makes Jumeirah Garden City a unique and desirable destination in Dubai.

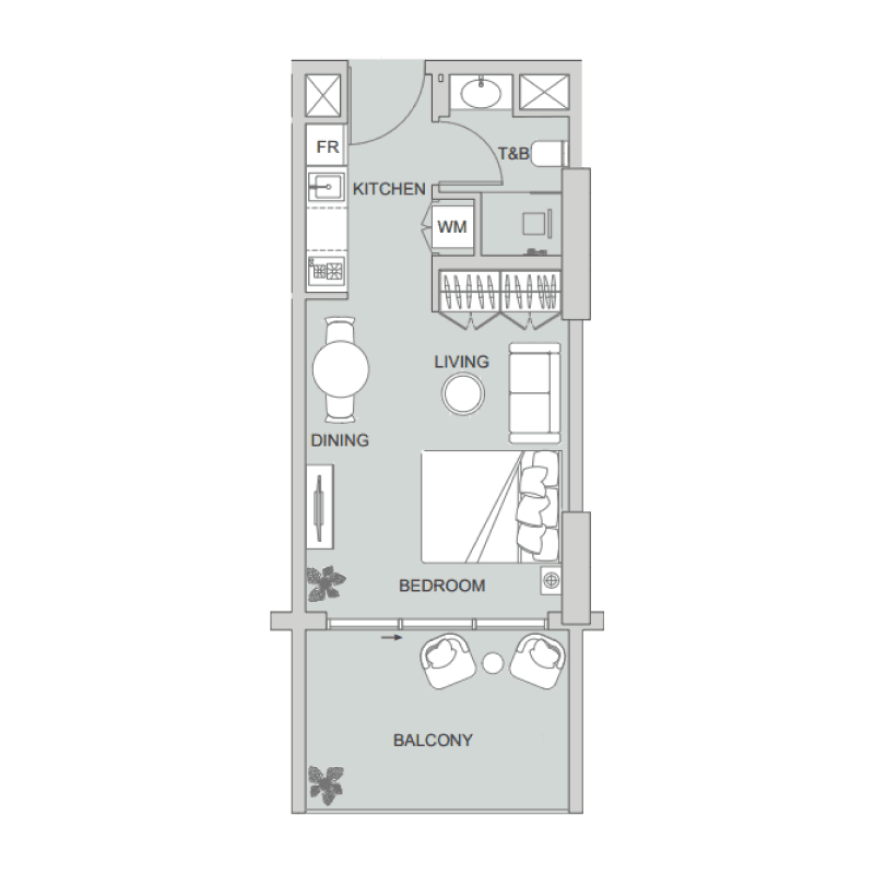
75 m²
AED 1,915,804
Loading map...
We'll get back to you within 24 hours